

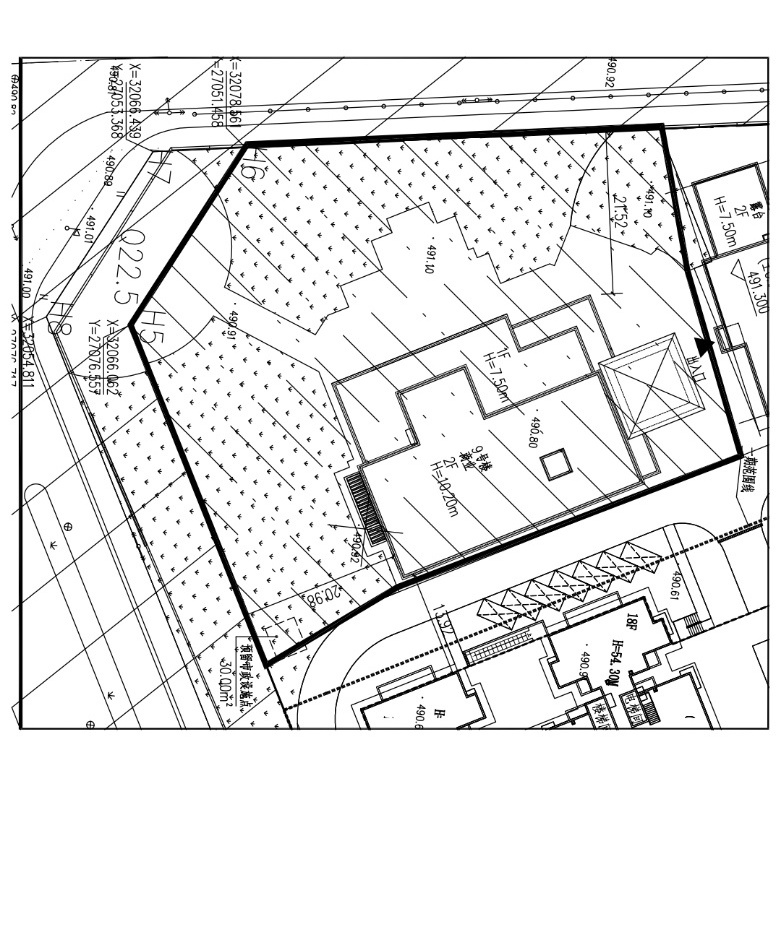
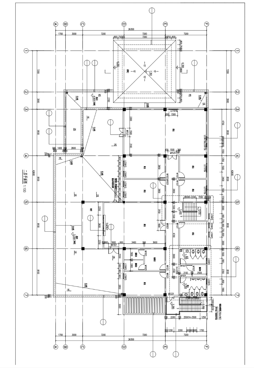
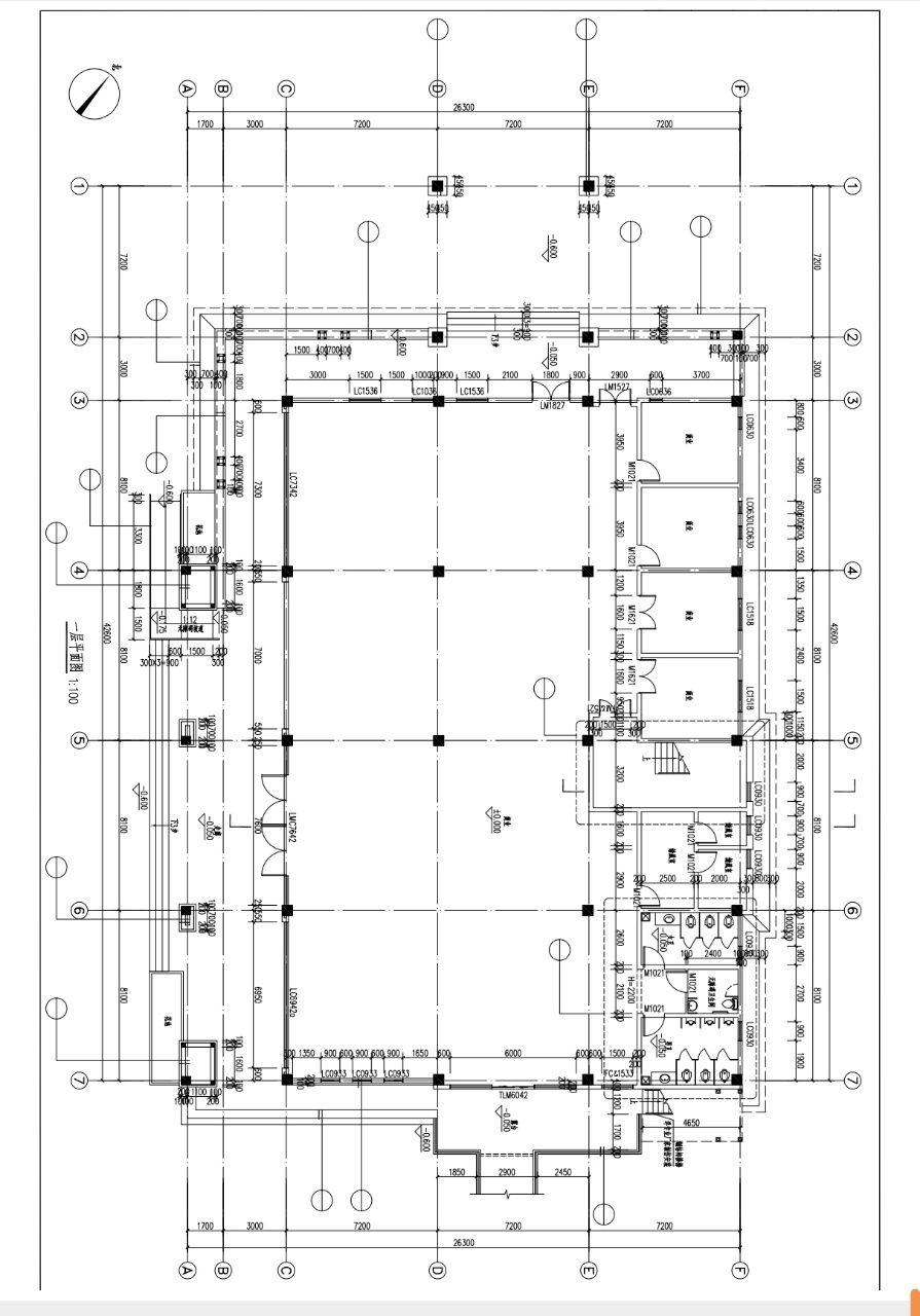
超大院子优质独栋(占地约5亩地) 莱茵北郡售楼部 产权面积:1200平 一楼大概:600多平 二楼:500多 报价:2560万 二手交易 适合:酒店 会所 公司总部 特色餐厅 露营餐厅 汽车4S店 展厅等等 一层高6米,二楼层高4.5米 赠送花园1800,使用面积3000,赠送是圈到红线内的,这个相当于是自家花园不需要报规划,直接使用想怎么用都可以。










超大院子优质独栋(占地约5亩地) 莱茵北郡售楼部 产权面积:1200平 一楼大概:600多平 二楼:500多 报价:2560万 二手交易 适合:酒店 会所 公司总部 特色餐厅 露营餐厅 汽车4S店 展厅等等 一层高6米,二楼层高4.5米 赠送花园1800,使用面积3000,赠送是圈到红线内的,这个相当于是自家花园不需要报规划,直接使用想怎么用都可以。
部分图文转载自网络,版权归原作者所有,如有侵权请联系我们删除。如内容中如涉及加盟,投资请注意风险,并谨慎决策